最高級銘木 吉野杉をふんだんに使用した
邸宅実例
お客様 専任チームと建てる、
世界1つだけの邸宅。
ご希望の敷地環境の特性を読み解き、
お客様のご要望を最大限に実現する
住まいをご提案。
伝統の技術を持った職人がそれをカタチに。
業界屈指の提案力と技術力を発揮するために、
お客様とチーム一体となり家づくりを推進。
-
POINT01
最高級銘木
吉野杉と技術で叶える、
静けさとやわらかな温熱イムラの住まいは全棟がZEH仕様
HEAT20G2グレード以上。家の中の温度差が少ない快適な環境と省エネ効果でヒートショックや室内での熱中症も未然に防止。次次元の違う涼しさと暖かさを実現する「吉野杉の家」の断熱性能をぜひ一度ご体感ください。 -
POINT02
造作と納まりが演出する、
上質な木の質感と統一感見切りの揃え方、角の納まり、木口の扱いまで、目に映る“余白”を整える仕上げの思想。
建具や収納、カウンターなどを空間に合わせて造作し、素材の表情が美しくつながる、
圧倒的な完成度を追求します。 -
POINT03
1邸1邸、暮らしを設計する。
大量生産では辿り着けない、
住まいの本質。イムラが大切にしているのは、
規格や効率ではなく、
1邸1邸の暮らしに深く踏み込む設計思想。木の特性、
経年変化、家族の時間軸までを読み取り、図面ではなく
“暮らしそのもの”を設計します。
数字では語りきれない、
住むほどに違いがわかる静かな満足感。 -
POINT04
土地の特徴を活かす。
敷地調査・環境分析お客様がお家を建てようとされる
敷地の特徴を読み取り、
最適なプランをご提案します。
そのためイムラでは、
・土地の風向きや風速
・平均気温
・平均相対湿度
などの定量的なデータを
細かく算出し、プランニング・設計を行います。
木につつまれたやすらぎの邸宅
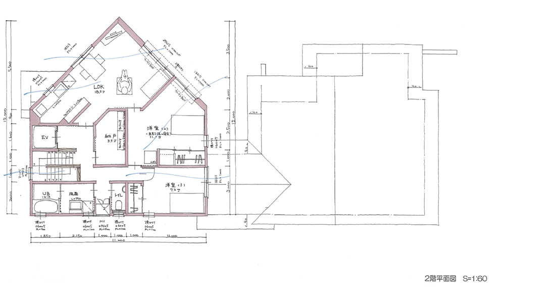
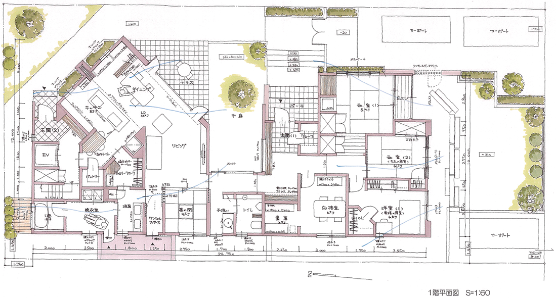
間取り例
設計コンセプト
敷地の大きな魅力である南東方向の眺望を活かすこと、ご家族皆さまがおもいおもいのスタイルでくつろぎ、やすらぎを感じられることを主題のテーマとしてプランニングしています。
現在のお住まいと同様に、中庭に対して45度に開口部を配置したキッチン~ダイニングエリアは、隣家からの視線を感じる事なく眺望を取り込みます。
また、大規模な計画ですが、中庭より北側にLDK~水廻りをまとめ、機能的な回遊できる動線を設けることで移動が負担にならないように設計しています。
中庭より南側は主に個室を中心とし、ON-OFFの切り替えを意識した設計です。
面積表
- 1階床面積
203.91㎡61.68坪 - 2階床面積
101.75㎡30.77坪 - 延床面積
305.66㎡92.45坪
- ポーチ面積
10.40㎡3.14坪 - 総施工面積
316.06㎡95.59坪
- 敷地面積
536.16㎡ - 建築面積
212.06㎡39.55% (MAX40%) - 延床面積
305.66㎡57.00% (MAX60%)
-
右手に中庭の景色を切り取りながら、正面の飾り棚のしつらえが出迎える玄関。
左手には土間収納がありゴルフバッグ等を機能的に収納する事ができます。
中庭を囲むように配置された開放的なホールはリビングへとみちびきます。 -
大きな開口部を持ちながら、適度な囲まれ感で落ち着きを演出するリビング。
タタミコーナーが隣接していておもいおもいのスタイルでくつろぐ事ができます。
45度に振られたダイニングへと続く事で、より奥行きと変化を感じていただける空間です。 -
素晴らしい眺望の中庭に面した、大きな開口部を持つキッチン~ダイニング。
キッチンに立つとその眺望が飛びこんできます。オープンなスタイルなキッチンとしながらも壁に収納されたパーテーションでキッチンを独立させることもできます。
ダイニング背面には造り付けの家具を配置し、日常の上着類や書類の仮置きができるスペースも配しています。 -
周辺の環境に溶け込み、落ち着いた佇まいの外観。
時が経っても褪せない質の高いデザインとしました。
外装は吹き付けをベースに木の質感をアクセントに取り入れ、アプローチ沿いのタイルの壁が重厚感を演出します。







